
Struktur baja talang minangka komponen penting ing sistem saluran gendheng bangunan. Fungsi utama yaiku ngumpulake banyu udan saka atap, langsung menyang pipa vertikal, banjur ngeculake menyang sistem saluran ruangan ruangan, nyegah saka tembok erodi utawa dhasar. Desain produk lan instalasi Liweiyuan ditondoi kanthi kekuatan lan bobot entheng, njamin saluran lancar lan daya tahan sing luar biasa.
Struktur baja talang minangka komponen penting ing sistem saluran gendheng bangunan. Fungsi utama yaiku ngumpulake banyu udan saka atap, langsung menyang pipa vertikal, banjur ngeculake menyang sistem saluran ruangan ruangan, nyegah saka tembok erodi utawa dhasar. Desain produk lan instalasi Liweiyuan ditondoi kanthi kekuatan lan bobot entheng, njamin saluran lancar lan daya tahan sing luar biasa.
Struktur baja Liweiyuan butter digawe saka bahan tahan karat lan tahan sing tahan karat.
Produk kita galvanis panas dicelup, nawakake resistensi karat sing apik, biaya sing murah, lan urip layanan sing dawa. Kasedhiya ing kekandelan 1,5-2.5 mm, cocog kanggo umume aplikasi.
Digawe saka stainless steel, produk iki nawakake resistensi karat lan cocog kanggo lingkungan pesisir utawa lembab. Kasedhiya ing ketebalan 1.0-2,0 mm, nawakake rega sing luwih dhuwur nanging urip layanan sing dawa.
Produk baja sing ditutupi warna-rata adhedhasar baja galvanis, dilapisi karo lapisan tahan cuaca, kayata poliester utawa fluorocarbon, kanggo resistance karat lan efek hiasan. Kasedhiya ing ketebalan 1,2-2,0 mm, sing cocog kanggo bangunan sing duwe banding estetika sing dhuwur.
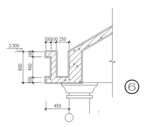
Bentuk struktur baja butter baja kudu dicocogake menyang slope payon lan efek EAVE. Jinis umum kalebu U-berbentuk U lan V-Shaped. Proses instalasi kaya ing ngisor iki:
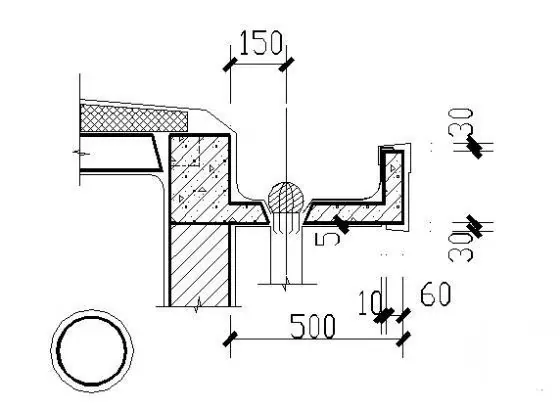
Struktur baja kita nggunakake kurung baja baja sudhut kanggo ngamanake balok kayu baja utawa purlins. Jarak kurung yaiku 600-1000mm kanggo njamin distribusi stres ing sajroning talang.
Gutter sing wis rampung wis diisi lan nyambungake situs kanthi nggunakake konektor utawa welding. Sealant dibutuhake ing prapatan ing antarane talang lan dektif atap.
Kita bisa nginstal sumunar ing ndhuwur dektif atap. Pungkasane ngisor gutter kudu dilebokake ing ngisor dektif atap lan disegel karo sealant. Saluran bolongan kudu diwenehake ing sisih ngisor gutter, utamane kanggo sambungan riser banyu udan.
Proses baja baja kita kalebu proses manufaktur butters kita kalebu nglereni miturut dimensi gambar, mbengkong, lukisan, inspeksi produk, kemasan, lan pengiriman. Struktur butter baja Liweiyuan dirancang lan diinstal kanggo njamin resistensi karat, saluran lancap, lan kanggo njamin got sing efisien.